
空運提單(Air waybill)是指承運貨物的航空承運人(航空公司)或其代理人,在收到承運貨物并接受托運人空運要求后,簽發給托運人的貨物收據。空運提單不是代表貨物所有權的憑證,不能通過背書進行轉讓,也不以交出提單作為提貨的條件。
審核空運提單就留意的題目是:
①空運提單的簽發人。空運提單應由航空承運人或其代理人簽發。除非信用證實確規定,銀行拒盡接受由運輸行或并裝商簽發的空運提單。
②空運提單的份數。空運提單一般為一式正本三份及副本若干份(第一份正本空運提單由航空承運人(航空公司)留底,第二份正本將隨同貨物一道交收貨人,跨境鐵路 國際物流,第三份正本由承運人交托運人,托運人可憑此向銀行辦理出口押)。
航空貨運單包括兩種
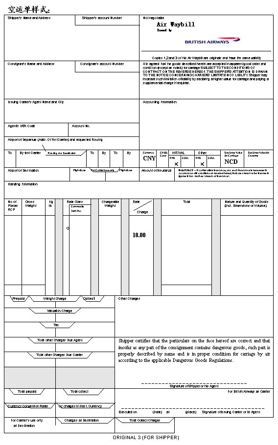
(1)航空公司貨運單(Airline Air Waybill)
印有出票航空公司(issue carrier)名稱及標志(航徽、代碼等)的航空貨運單。這類空運單代表出票航空公司的身份。
(2)中性貨運單(Neutral Air Waybill)
沒有預先在運單上打印任何承運人名稱及標志的貨運單。這類空運單不代表任何一個航空公司,是中立貨運單。
(1)航空主運單(Master Air Waybill ,跨境鐵路 國際物流,MAWB)
凡由航空運輸公司簽發的航空運單就稱為主運單。
(2)航空分運單(House Air Waybill ,HAWB)
航空貨運代理公司在辦理集中托運業務時簽發給各個發貨人的運單。
,國際物流鄭重聲明:本文版權歸原作者所有,轉載文章僅為傳播更多信息之目的,如作者信息標記有誤,請第一時間聯系我們修改或刪除,多謝。
| 千航國際 |
| 國際空運 |
| 國際海運 |
| 國際快遞 |
| 跨境鐵路 |
| 多式聯運 |